
Die Accuride 1234 Auszugschiene für versenkbare Türen ermöglicht ein einwandfreies Einklappen des Türelementes an die Schrankseite. Sie eignet sich sowohl für Aufliegende als auch eingebaute Türen und lässt sich vertikal, sowie horizontal anbringen. Wir bieten ebenfalls hochwertige Salice-Scharniere an, um die Montage am Schrank ideal zu unterstützen.
- 80,000 Prüfungszyklen
- Maximales Türgewicht 14kg
- In 3 einfachen Schritten eingebaut
- Vertikaler oder horizontaler Einsatz
- Lieferung mit Ober-und Unterrutsche
Hinweise:
- Türen 1100mm hoch x 610mm breit (max.)
- Holzstärke sollte 16mm-32mm sein
- Scharniere, Grundplatten und Traverse nicht mitgeliefert
- Traverse muss benutzt werden. Eiche oder Buche empfohlen
- Empfohlene Befestigung: Holzschraube 4mm (mitgeliefert)/Euro-Schraube 6mm
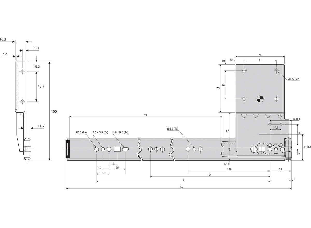
- Bitte beachten Sie die 2D-CAD-Zeichnung wegen Abmessungstoleranzen
Werkstoff - Flussstahl
SL = Schlittenlänge
TR = Führungsschienenlänge
W = Gewicht (kg)